Hestia 1311
€
100 680
O nieruchomości
Hestia Residence to nowoczesna inwestycja mieszkaniowa w samym centrum turystycznego Golem, położona w niewielkiej odległości od plaży, pośród hoteli, barów i restauracji co zapewnia dostęp do wakacyjnej infrastruktury. Oferuje apartamenty typu Studio, 1+1, 2+1 oraz Loft (Duplex), co zapewnia duży wybór mieszkań zarówno w celach inwestycyjnych (najem), jak i mieszkalnych (apartamenty wakacyjne i całoroczne). Przewidywany termin oddania inwestycji maj/czerwiec 2028
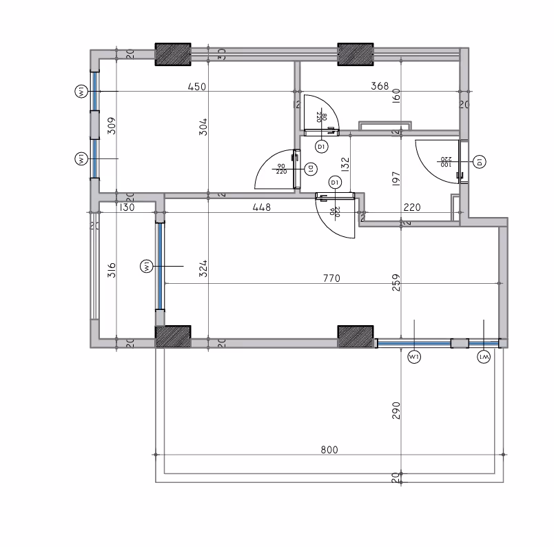
Mieszkanie typu 1+1 na trzecim piętrze
Powierzchnia całkowita 96,3m2, powierzchnia wewnętrzna 71,5m2 + balkon 24,8m2
Orientacja południowy-zachód
Więcej informacji: WhatsApp +48664551002 lub +48692702101
Skontaktuj się z nami


lub zostaw swoje dane,
odezwiemy się do Ciebie
odezwiemy się do Ciebie








.avif)
.avif)
