1+1 Golem [M-268]
€
75 800
O nieruchomości
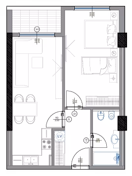
Przestronne mieszkanie w nowo budowanym budynku w malowniczej miejscowości Golem, zaledwie 500 metrów od morza. Mieszkanie o łącznej powierzchni 68,9 m² (powierzchnia użytkowa 59,2 m²) to doskonała propozycja dla osób szukających komfortowego lokum blisko plaży.
W skład mieszkania wchodzą:
- Salon z aneksem kuchennym – przestronny i jasny, z wyjściem na balkon, idealny do wypoczynku.
- Sypialnia – ustawna, z możliwością dowolnej aranżacji.
- Łazienka – nowoczesna, przewidziana na komfortową kabinę prysznicową.
- Balkon – świetne miejsce na poranną kawę lub relaks z widokiem na okolicę.
Budynek w trakcie realizacji – nowoczesna architektura, wysoka jakość użytych materiałów i atrakcyjna lokalizacja sprawiają, że jest to idealna inwestycja zarówno na cele mieszkalne, jak i wynajem.
Bliskość morza, lokalne restauracje, kawiarnie oraz atrakcje turystyczne sprawiają, że mieszkanie jest doskonałą propozycją dla osób ceniących komfort.
Oddanie budowy - pierwszy kwartał 2027
Zapraszamy do kontaktu
Skontaktuj się z nami


lub zostaw swoje dane,
odezwiemy się do Ciebie
odezwiemy się do Ciebie









