Adria X05
€
81 060 - 98 430
Adria X05
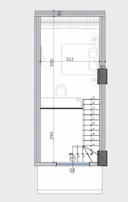
Mieszkanie dwupoziomowe na czwartym piętrze
Powierzchnia całkowita 57,9m2, powierzchnia wewnętrzna 45,8m2
Orientacja: północ lub południe
Cena za m2 1400-1700 € W zależności od budynku, orientacji i systemu płatności
Skontaktuj się z nami


lub zostaw swoje dane,
odezwiemy się do Ciebie
odezwiemy się do Ciebie




